Casa del Vento is located about 3 km from the borgo of Casale Marittimo, and about the same distance from the borgo of Bibbona, at the end of a road that plunges into an incomparable panorama. The villa has two floors above ground and a basement, for a total of 438 sq m; it was built in 2002 but despite 18 years having passed since then it seems newly built, thanks to the high quality of the construction techniques used then and to the fact that it has always been inhabited by only one family member. Just its name alone expresses all the nature that the house contains within itself and the benefits it derives from that same nature that surrounds it.
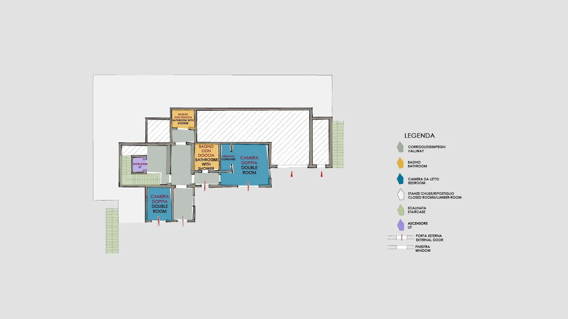
The villa has three floors. From the main entrance, you go into the sitting room with fireplace and TV; on the left are two large doors opening to the kitchen with dining table from where you go out to the veranda and pergola. From the veranda you come to a double bedroom with bathroom with shower and direct access to the terrace. The main entrance to the terrace is from the sitting room but it can also be reached from the garden. To the right of the sitting room is the lift which goes up to the first floor and down to the basement, a bathroom with shower and the wooden staircase leading to the sleeping areas on both the first floor and the basement. The sleeping area on the first floor consists of two double bedrooms, one with a balcony and a bathroom with tub. The entrance to the basement area leads, on the right, into a hallway with direct access out to the portico and to a bedroom with two beds; on the left, to a bathroom with shower and laundry; opposite, to a double bedroom with access to the portico and a bathroom with shower.
The villa is surrounded by a green park which extends for a total area of six hectares, of which one hectare around the house is used as the garden. Natural grass and olive trees are the undisputed protagonists. Patches of flowers, stones and creepers give the finishing touches to the nooks and crannies along the way to the swimming pool. A beautiful corner portico faces, first, the lawn and then the sea; reading, relaxing and seating areas are dotted here and there in the garden; the pergola next to the dining area is set up for outdoor dining, with a handy barbecue.Please notice that photos are taken in spring, therefore flower blossoming, and the colours of the gardens' grass could be different at the moment of your arrival at the villa.
The rectangular swimming pool, measuring 11 x 3 m, is located just a few metres from the house, hidden from it and surrounded by olive trees that guarantee the privacy for those using it and maintain peace and quiet for those who decide to remain in the house. Ht is reached across the lawn and is purified with ozone. The solarium terrace, approximately 23 sq m , is equipped with sunbeds, deck chairs and umbrellas so that you can fully enjoy this exclusive area. The pool is open from the last Saturday of April until the first Saturday of October.
For more technical details and layout of spaces, see "Planimetries"
San Gimignano: 50 km
Livorno: 55 km
Firenze: 110 km
Siena: 115 km
Pisa: 85 km
Roma: 260 km

Bibbona is a charming village nestled in the heart of the Etruscan Coast, in the province of Livorno. Surrounded by rolling hills, centuries-old olive groves, and lush pine forests, it offers a peaceful countryside atmosphere just minutes from the sea. The historic center, with its stone alleys and medieval architecture, invites visitors to slow down and enjoy the authentic Tuscan lifestyle. Just a short drive away is Marina di Bibbona, known for its wide sandy beaches and crystal-clear waters, perfect for families and nature lovers. Thanks to its central location, Bibbona is also an excellent base for discovering nearby towns like Bolgheri, Castagneto Carducci, and the famous wine roads of the region.
Cecina: A lively coastal town with sandy beaches, vibrant nightlife, and a mix of history and modern charm.
Castagneto Carducci: A medieval hilltop village with panoramic views and a rich cultural heritage, named after the poet Giosuè Carducci.
Bolgheri: Known for its famous Cypress Avenue and renowned wineries, this village offers a picturesque Tuscan escape.
Livorno: A port city with beautiful waterfront views, charming canals, and a rich seafood culture.
San Gimignano: A UNESCO World Heritage town known for its medieval towers and stunning views of the Tuscan countryside.
To book this villa, please contact us to confirm availability for your desired dates.
Once the availability of the dates has been confirmed, you will receive a quote. you will have to pay 30% of the deposit + any management fees and policies, the balance must be paid no later than 60 days before check in. In the case of an "underdated" booking, i.e. a delay of less than 60 days between the booking date and the start date of the stay, the payment required will be 100%
Cancellation of a reservation, even if replaced by another, involves the payment of the following penalties:
30% of the total booking price (rental price relating to the booking period) plus EV booking fees in the case of booking cancellation communicated before (and no later than) the 60th day from the start of the stay;
60% of the total booking price (rental price relating to the booking period) plus EV booking fees in the case of booking cancellation communicated between the 59th and 30th day from the start of the stay;
80% of the total booking price (rental price relating to the booking period) plus EV booking fees in the case of booking cancellation communicated between the 29th and 15th day from the start of the stay;
100% of the total booking price (rental price relating to the booking period) plus EV booking fees in the case of booking cancellation communicated within 14 days before the start of the stay.
* In case of cancellation of the booking for justified reasons, these penalties are covered by the EuropAssistance insurance policy signed at the time of booking, as regulated by the "Cancellation Insurance Conditions".
**The “Booking Fees” are never refundable.
Bibbona is a charming village nestled in the heart of the Etruscan Coast, in the province of Livorno. Surrounded by rolling hills, centuries-old olive groves, and lush pine forests, it offers a peaceful countryside atmosphere just minutes from the sea. The historic center, with its stone alleys and medieval architecture, invites visitors to slow down and enjoy the authentic Tuscan lifestyle. Just a short drive away is Marina di Bibbona, known for its wide sandy beaches and crystal-clear waters, perfect for families and nature lovers. Thanks to its central location, Bibbona is also an excellent base for discovering nearby towns like Bolgheri, Castagneto Carducci, and the famous wine roads of the region.
Cecina: A lively coastal town with sandy beaches, vibrant nightlife, and a mix of history and modern charm.
Castagneto Carducci: A medieval hilltop village with panoramic views and a rich cultural heritage, named after the poet Giosuè Carducci.
Bolgheri: Known for its famous Cypress Avenue and renowned wineries, this village offers a picturesque Tuscan escape.
Livorno: A port city with beautiful waterfront views, charming canals, and a rich seafood culture.
San Gimignano: A UNESCO World Heritage town known for its medieval towers and stunning views of the Tuscan countryside.
Casa del Vento is located about 3 km from the borgo of Casale Marittimo, and about the same distance from the borgo of Bibbona, at the end of a road that plunges into an incomparable panorama. The villa has two floors above ground and a basement, for a total of 438 sq m; it was built in 2002 but despite 18 years having passed since then it seems newly built, thanks to the high quality of the construction techniques used then and to the fact that it has always been inhabited by only one family member. Just its name alone expresses all the nature that the house contains within itself and the benefits it derives from that same nature that surrounds it.
The villa has three floors. From the main entrance, you go into the sitting room with fireplace and TV; on the left are two large doors opening to the kitchen with dining table from where you go out to the veranda and pergola. From the veranda you come to a double bedroom with bathroom with shower and direct access to the terrace. The main entrance to the terrace is from the sitting room but it can also be reached from the garden. To the right of the sitting room is the lift which goes up to the first floor and down to the basement, a bathroom with shower and the wooden staircase leading to the sleeping areas on both the first floor and the basement. The sleeping area on the first floor consists of two double bedrooms, one with a balcony and a bathroom with tub. The entrance to the basement area leads, on the right, into a hallway with direct access out to the portico and to a bedroom with two beds; on the left, to a bathroom with shower and laundry; opposite, to a double bedroom with access to the portico and a bathroom with shower.
The villa is surrounded by a green park which extends for a total area of six hectares, of which one hectare around the house is used as the garden. Natural grass and olive trees are the undisputed protagonists. Patches of flowers, stones and creepers give the finishing touches to the nooks and crannies along the way to the swimming pool. A beautiful corner portico faces, first, the lawn and then the sea; reading, relaxing and seating areas are dotted here and there in the garden; the pergola next to the dining area is set up for outdoor dining, with a handy barbecue.Please notice that photos are taken in spring, therefore flower blossoming, and the colours of the gardens' grass could be different at the moment of your arrival at the villa.
The rectangular swimming pool, measuring 11 x 3 m, is located just a few metres from the house, hidden from it and surrounded by olive trees that guarantee the privacy for those using it and maintain peace and quiet for those who decide to remain in the house. Ht is reached across the lawn and is purified with ozone. The solarium terrace, approximately 23 sq m , is equipped with sunbeds, deck chairs and umbrellas so that you can fully enjoy this exclusive area. The pool is open from the last Saturday of April until the first Saturday of October.
For more technical details and layout of spaces, see "Planimetries"