Villa Leonardo da Vinci
Villa Leonardo da Vinci
VinciVinci·Florenz
VinciVinci·Florenz
Anfrage € 780.000,00
Eigenschaft Typ:  Unabhängige Villa

Kabeljau: ES 48
336 m²
Haus
52000 m²
Land
9
Zimmer
4
Schlafräume
4
Bäder

Über die Immobilie

Das Landhaus San Lorenzo befindet sich in dominanter Lage inmitten der atemberaubenden Landschaft von Vinci (FI) und ist weniger als zwei Kilometer vom historischen Stadtzentrum entfernt. Wichtige toskanische Kunststädte sind leicht erreichbar: Florenz (40 Minuten), Pistoia (40 Minuten), Pisa (45 Minuten), Livorno (50 Minuten) und Siena (60 Minuten).

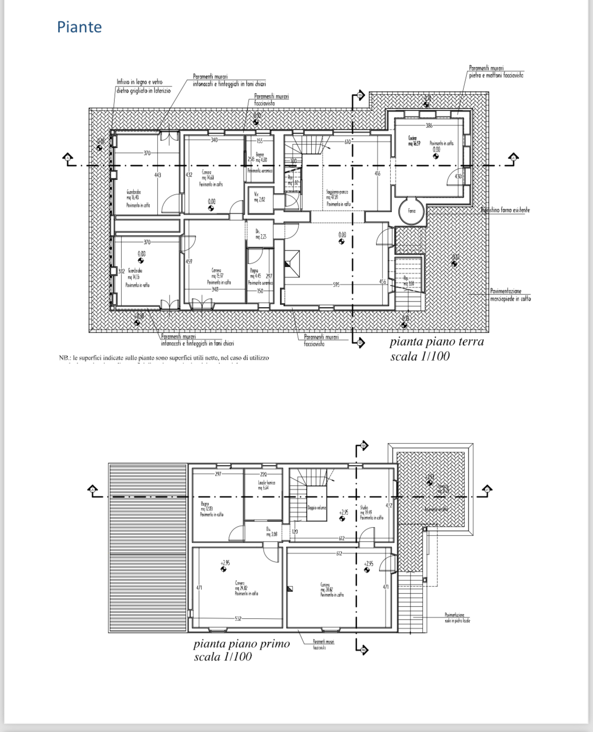
Das Bauernhaus, das ursprünglich eine dem Heiligen Lorenzo geweihte Landkirche aus dem 15. Jahrhundert war, ist innen und außen aus Naturstein gebaut. Es wurde von lokalen Handwerkern sorgfältig restauriert. Das Anwesen umfasst ein vollständig renoviertes Gebäude mit einer Gesamtfläche von 336 m². Das Haus kann leicht in zwei oder drei Wohneinheiten aufgeteilt werden.

Das Anwesen umfasst 52.216 m² Land, darunter einen Olivenhain (ca. 300 Bäume), einen Weinberg (der neu bepflanzt werden soll), Wald und Ackerland. Das Anwesen verfügt auch über einen 120 Meter tiefen artesischen Brunnen, der 100 Liter Trinkwasser pro Minute liefert (2008 getestet).

Historische Anmerkungen:
Ursprünglich eine kleine Landkirche aus der Zeit vor 1500, wurde sie im Laufe der Jahrhunderte in ein Bauernhaus umgewandelt. Das Haus liegt an der alten "Strada Vicinale San Lorenzo", einem Weg, der einst Vinci mit Faltognano verband. Historische Karten aus dem 15. Jahrhundert zeigen die ursprüngliche Struktur der Kirche. Im Jahr 1477 erstellte Leonardo da Vinci im Zusammenhang mit dem Bau eines Staudamms in der Nähe eine Karte von Vinci und der umliegenden Landschaft. Auf dieser Karte ist der Standort der Kirche eingezeichnet, was auf ihre Bedeutung in der Region zu jener Zeit hinweist.

Renovierung:
Das Anwesen wurde unter der Aufsicht des Amtes für Schöne Künste in Florenz und der Gemeinde Vinci sorgfältig restauriert. Die ursprüngliche Außenfassade und ein Großteil des Mauerwerks im Inneren wurden erhalten, und überall wurden traditionelle toskanische Materialien verwendet. Die Böden bestehen aus wiedergewonnener Terrakotta und handgefertigten Impruneta-Fliesen. Die Bäder sind mit Botticino-Marmor ausgestattet, und die Treppe ist aus Fiorenzuola-Stein gefertigt, einem haltbaren Material, das dem traditionellen toskanischen Stein ähnelt. Die Innenräume wurden mit modernen Systemen ausgestattet, darunter Fußbodenheizung, Sanitär- und Elektroinstallation. Das gesamte Gebäude ist mit dreifach verglasten Mahagonifenstern ausgestattet, die für Wärme- und Schalldämmung sorgen.

Die Immobilie muss jedoch noch fertiggestellt werden, was den neuen Eigentümern die einmalige Gelegenheit bietet, ihr Traumhaus in der Toskana vollständig zu personalisieren und zu vollenden. Zu den wichtigsten Installationen, die noch abgeschlossen werden müssen, gehören:

  • Küche: Die Küche muss noch eingebaut werden, so dass sie nach den Wünschen des Käufers gestaltet werden kann.
  • Steckdosen & Beleuchtung: Es müssen Steckdosen und Beleuchtungskörper installiert werden, wobei der Käufer die Freiheit hat, seinen bevorzugten Stil zu wählen.
  • Bäder: Die Rohrleitungen für die Badezimmer sind bereits vorhanden, aber die Geräte und Armaturen müssen noch hinzugefügt werden.
  • Möbel: Das Haus kann nach dem Stil und Geschmack des neuen Eigentümers eingerichtet werden.
  • Heizung & Kessel: Eine Heizungsanlage und ein Heizkessel müssen installiert werden, was die Möglichkeit bietet, ein auf die Bedürfnisse des Käufers zugeschnittenes System zu wählen.

Dies ist eine einzigartige Gelegenheit um das Haus genau so zu gestalten, wie Sie es sich vorstellen, damit es perfekt zu Ihrem Lebensstil und Geschmack passt.

Die derzeitigen Eigentümer, die in der Nähe wohnen und mit den besten örtlichen Bauunternehmen vertraut sind, sind gerne bereit, den neuen Eigentümern bei der Fertigstellung der Immobilie während ihrer Abwesenheit zu helfen. Dies macht den gesamten Prozess völlig stressfreiDie Eigentümer können die verbleibenden Arbeiten mit vertrauenswürdigen Fachleuten vor Ort koordinieren und so sicherstellen, dass die Vision des Hauses vollständig umgesetzt wird.

Die Immobilie verfügt auch über energieeffiziente Merkmale, wie z. B. 26 in das Dach integrierte Sonnenkollektoren zur Stromversorgung des Hauses. Der Technikraum im ersten Stock beherbergt die Heiz- und Kühlsysteme sowie die Energiespeicherbatterien. Die Außenwege sind aus Terrakotta, und die Außenbeleuchtung kann installiert werden.

Diese einzigartige Immobilie verbindet historischen Charme mit modernem Komfort und bietet ein außergewöhnliches Wohnerlebnis im Herzen der Toskana und gleichzeitig die seltene Gelegenheit, Ihr Traumhaus in einer der schönsten Regionen Italiens zu bauen.

Eigenschaften

Privater Garten
Privater Parkplatz
Keine Klimatisierung
Heizung
Terrasse
BBQ-Grill

Standort

In der Nähe

  • Florenz - 40 km (50 Minuten Fahrt)

  • Pisa - 55 km (1 Stunde Fahrt)

  • Lucca - 50 km (50 Minuten Fahrt)

  • Siena - 85 km (1 Stunde 30 Minuten Fahrt)

Attraktionen in der Nähe

Vinci ist ein malerische mittelalterliche Stadt im Herz der Toskanaam besten bekannt als der Geburtsort von Leonardo da Vinci. Inmitten der sanften Hügel von Montalbanoumgeben von Weinberge und Olivenhainebietet Vinci eine eine Mischung aus Geschichte, Kultur und Naturschönheiten. Die Stadt feiert Leonardos Vermächtnis mit Museen und Ausstellungen, die ihm gewidmet sind künstlerisches und wissenschaftliches Genieund ist damit ein Muss für alle Geschichtsliebhaber und Kunstinteressierte.

  • Leonardianisches Museum - Ein Museum zum Thema Die Erfindungen, Maschinen und wissenschaftlichen Studien von Leonardo da Vinciuntergebracht in der mittelalterlichen Schloss der Grafen Guidi.

  • Leonardos Geburtshaus (Casa Natale di Leonardo) - Ein kleines Steinhaus in dem nahe gelegenen Dorf Anchiano, wobei Leonardo wurde im Jahr 1452 geboren.und bietet ein immersives Erlebnis mit Multimedia-Exponate.

  • Kirche von Santa Croce - A historische Kirche wo Leonardo war getauftmit einer wunderschönen Romanische Fassade und künstlerische Details.

  • Piazza dei Guidi - Eine moderne künstlerisches Quadrat, inspiriert von den geometrischen Studien Leonardos, entworfen von einem zeitgenössischen Künstler Mimmo Paladino.

  • Villa del Ferrale - A Renaissance-Villa mit einer Ausstellung von Leonardos berühmte Gemäldeeinschließlich hochwertiger Reproduktionen seiner Meisterwerke.

  • Montalbano-Hügel - Die Umgebung Die toskanische Landschaftideal für Weinverkostung, Wandern und Radfahrenund bietet atemberaubende Aussicht auf Weinberge, Olivenhaine und Zypressen.

Anfrage € 780.000

Kontakt aufnehmen

Aüber diesen Raum

Das Landhaus San Lorenzo befindet sich in dominanter Lage inmitten der atemberaubenden Landschaft von Vinci (FI) und ist weniger als zwei Kilometer vom historischen Stadtzentrum entfernt. Wichtige toskanische Kunststädte sind leicht erreichbar: Florenz (40 Minuten), Pistoia (40 Minuten), Pisa (45 Minuten), Livorno (50 Minuten) und Siena (60 Minuten).

Das Bauernhaus, das ursprünglich eine dem Heiligen Lorenzo geweihte Landkirche aus dem 15. Jahrhundert war, ist innen und außen aus Naturstein gebaut. Es wurde von lokalen Handwerkern sorgfältig restauriert. Das Anwesen umfasst ein vollständig renoviertes Gebäude mit einer Gesamtfläche von 336 m². Das Haus kann leicht in zwei oder drei Wohneinheiten aufgeteilt werden.

Das Anwesen umfasst 52.216 m² Land, darunter einen Olivenhain (ca. 300 Bäume), einen Weinberg (der neu bepflanzt werden soll), Wald und Ackerland. Das Anwesen verfügt auch über einen 120 Meter tiefen artesischen Brunnen, der 100 Liter Trinkwasser pro Minute liefert (2008 getestet).

Historische Anmerkungen:
Ursprünglich eine kleine Landkirche aus der Zeit vor 1500, wurde sie im Laufe der Jahrhunderte in ein Bauernhaus umgewandelt. Das Haus liegt an der alten "Strada Vicinale San Lorenzo", einem Weg, der einst Vinci mit Faltognano verband. Historische Karten aus dem 15. Jahrhundert zeigen die ursprüngliche Struktur der Kirche. Im Jahr 1477 erstellte Leonardo da Vinci im Zusammenhang mit dem Bau eines Staudamms in der Nähe eine Karte von Vinci und der umliegenden Landschaft. Auf dieser Karte ist der Standort der Kirche eingezeichnet, was auf ihre Bedeutung in der Region zu jener Zeit hinweist.

Renovierung:
Das Anwesen wurde unter der Aufsicht des Amtes für Schöne Künste in Florenz und der Gemeinde Vinci sorgfältig restauriert. Die ursprüngliche Außenfassade und ein Großteil des Mauerwerks im Inneren wurden erhalten, und überall wurden traditionelle toskanische Materialien verwendet. Die Böden bestehen aus wiedergewonnener Terrakotta und handgefertigten Impruneta-Fliesen. Die Bäder sind mit Botticino-Marmor ausgestattet, und die Treppe ist aus Fiorenzuola-Stein gefertigt, einem haltbaren Material, das dem traditionellen toskanischen Stein ähnelt. Die Innenräume wurden mit modernen Systemen ausgestattet, darunter Fußbodenheizung, Sanitär- und Elektroinstallation. Das gesamte Gebäude ist mit dreifach verglasten Mahagonifenstern ausgestattet, die für Wärme- und Schalldämmung sorgen.

Die Immobilie muss jedoch noch fertiggestellt werden, was den neuen Eigentümern die einmalige Gelegenheit bietet, ihr Traumhaus in der Toskana vollständig zu personalisieren und zu vollenden. Zu den wichtigsten Installationen, die noch abgeschlossen werden müssen, gehören:

  • Küche: Die Küche muss noch eingebaut werden, so dass sie nach den Wünschen des Käufers gestaltet werden kann.
  • Steckdosen & Beleuchtung: Es müssen Steckdosen und Beleuchtungskörper installiert werden, wobei der Käufer die Freiheit hat, seinen bevorzugten Stil zu wählen.
  • Bäder: Die Rohrleitungen für die Badezimmer sind bereits vorhanden, aber die Geräte und Armaturen müssen noch hinzugefügt werden.
  • Möbel: Das Haus kann nach dem Stil und Geschmack des neuen Eigentümers eingerichtet werden.
  • Heizung & Kessel: Eine Heizungsanlage und ein Heizkessel müssen installiert werden, was die Möglichkeit bietet, ein auf die Bedürfnisse des Käufers zugeschnittenes System zu wählen.

Dies ist eine einzigartige Gelegenheit um das Haus genau so zu gestalten, wie Sie es sich vorstellen, damit es perfekt zu Ihrem Lebensstil und Geschmack passt.

Die derzeitigen Eigentümer, die in der Nähe wohnen und mit den besten örtlichen Bauunternehmen vertraut sind, sind gerne bereit, den neuen Eigentümern bei der Fertigstellung der Immobilie während ihrer Abwesenheit zu helfen. Dies macht den gesamten Prozess völlig stressfreiDie Eigentümer können die verbleibenden Arbeiten mit vertrauenswürdigen Fachleuten vor Ort koordinieren und so sicherstellen, dass die Vision des Hauses vollständig umgesetzt wird.

Die Immobilie verfügt auch über energieeffiziente Merkmale, wie z. B. 26 in das Dach integrierte Sonnenkollektoren zur Stromversorgung des Hauses. Der Technikraum im ersten Stock beherbergt die Heiz- und Kühlsysteme sowie die Energiespeicherbatterien. Die Außenwege sind aus Terrakotta, und die Außenbeleuchtung kann installiert werden.

Diese einzigartige Immobilie verbindet historischen Charme mit modernem Komfort und bietet ein außergewöhnliches Wohnerlebnis im Herzen der Toskana und gleichzeitig die seltene Gelegenheit, Ihr Traumhaus in einer der schönsten Regionen Italiens zu bauen.

Über diesen Bereich

Vinci ist ein malerische mittelalterliche Stadt im Herz der Toskanaam besten bekannt als der Geburtsort von Leonardo da Vinci. Inmitten der sanften Hügel von Montalbanoumgeben von Weinberge und Olivenhainebietet Vinci eine eine Mischung aus Geschichte, Kultur und Naturschönheiten. Die Stadt feiert Leonardos Vermächtnis mit Museen und Ausstellungen, die ihm gewidmet sind künstlerisches und wissenschaftliches Genieund ist damit ein Muss für alle Geschichtsliebhaber und Kunstinteressierte.

  • Leonardianisches Museum - Ein Museum zum Thema Die Erfindungen, Maschinen und wissenschaftlichen Studien von Leonardo da Vinciuntergebracht in der mittelalterlichen Schloss der Grafen Guidi.

  • Leonardos Geburtshaus (Casa Natale di Leonardo) - Ein kleines Steinhaus in dem nahe gelegenen Dorf Anchiano, wobei Leonardo wurde im Jahr 1452 geboren.und bietet ein immersives Erlebnis mit Multimedia-Exponate.

  • Kirche von Santa Croce - A historische Kirche wo Leonardo war getauftmit einer wunderschönen Romanische Fassade und künstlerische Details.

  • Piazza dei Guidi - Eine moderne künstlerisches Quadrat, inspiriert von den geometrischen Studien Leonardos, entworfen von einem zeitgenössischen Künstler Mimmo Paladino.

  • Villa del Ferrale - A Renaissance-Villa mit einer Ausstellung von Leonardos berühmte Gemäldeeinschließlich hochwertiger Reproduktionen seiner Meisterwerke.

  • Montalbano-Hügel - Die Umgebung Die toskanische Landschaftideal für Weinverkostung, Wandern und Radfahrenund bietet atemberaubende Aussicht auf Weinberge, Olivenhaine und Zypressen.

Kontakt aufnehmen

EXTRA-DIENSTE

Suchen Sie Ihr Traumhaus

Kategorie
Tipologia
Preis
Preis
Oberfläche
Superficie
Bett
Camere da Letto Neu
Badezimmer
Bagni Neu

Annehmlichkeiten

Schwimmendes Schwimmbad
Aria condizionata
Privatparkplatz
Privater Garten
Riscaldamento

NUR EINEN KLICK ENTFERNT VON

Ihr Traumhaus in der Toskana!

Nennen Sie uns Ihre bevorzugte Preisspanne, und wir senden Ihnen wöchentlich maßgeschneiderte Angebote, die Ihren Wünschen entsprechen.

Zusätzliche Dienstleistungen

Buchung & Stornierung

Preis nicht inbegriffen

Im Preis inbegriffen

ALLE EIGENSCHAFTEN

BADEZIMMER

ENTERTEINMENT

FAMILIE

HEIZUNG UND KLIMATISIERUNG

Heizung

INTERNET & ARBEITSRAUM

Dedizierter Arbeitsbereich

KÜCHE UND ESSZIMMER

IMMOBILIENCHARAKTERISTIKEN

Privater Parkplatz
Privater Garten
   Haustiere nicht erlaubt

OUTDOOR

Terrasse
BBQ-Grill

DIENSTLEISTUNGEN